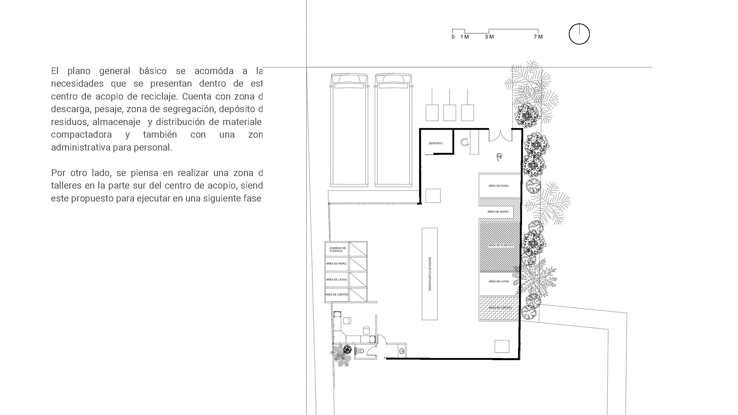
Cultura 0 es un proyecto de placemaking desarrollado en colaboración con la ONG Reinventa para el diseño de un centro de acopio en Calle 18 de Santa Ana. Nuestro proceso comenzó con un análisis exhaustivo del territorio y los predios del lote, complementado por reuniones estratégicas con stakeholders clave, incluyendo Recimetal, para profundizar en el manejo y gestión de residuos. Esta investigación permitió identificar buenas prácticas en otros centros de reciclaje del país y adaptarlas al contexto local. La propuesta final integra el diseño funcional del centro de acopio —optimizando los procesos de recepción, clasificación y almacenamiento— con un parque vecinal que lo rodea, transformando una infraestructura de servicio en un espacio público activo. El proyecto incluye además un componente educativo con áreas dedicadas a talleres y sensibilización comunitaria sobre prácticas sostenibles, demostrando cómo la gestión de residuos puede integrarse al tejido urbano como una oportunidad de cohesión social.




